1 Bed, 1 Bath Two-Unit Detached ADU – 980 sq. ft.
U2-BR1-BA1-980

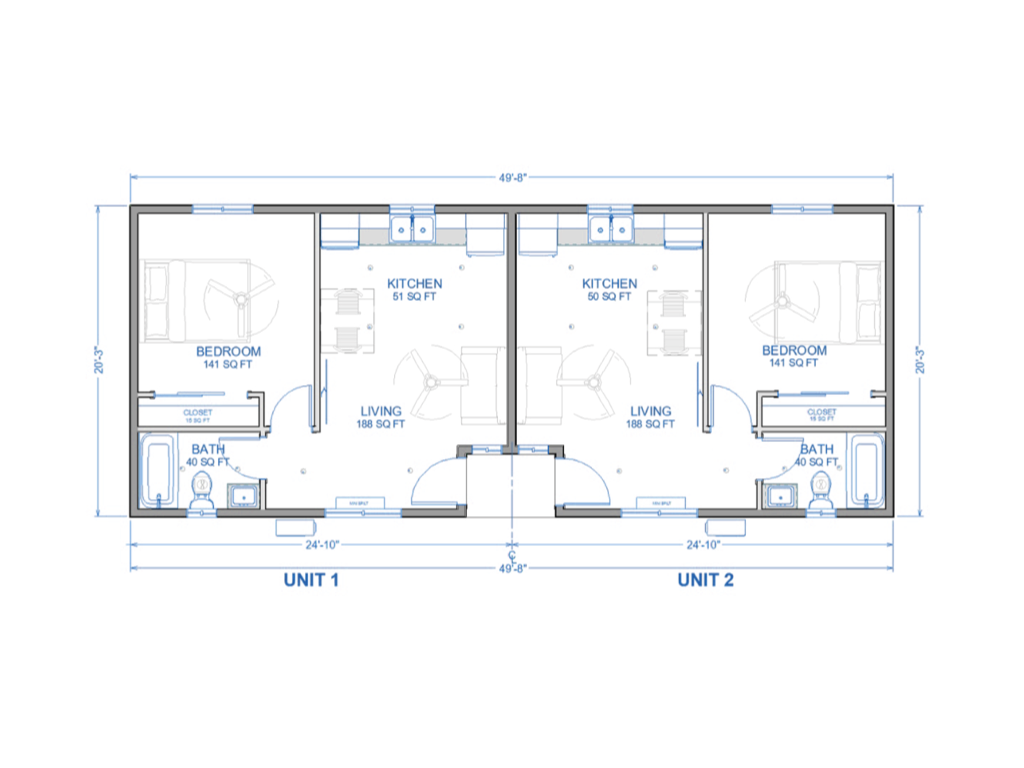
Plan Details
- Size: 980 sq. ft. (two units)
- Model: U2-BR1-BA1-980
- Layout: Each unit includes 1 bedroom, 1 bathroom, and open-concept kitchen + living area
- Configuration: Dual detached units (side-by-side or stacked option possible)
Functional 1 Bedroom, 1 Bathroom Layouts
Each of the two units in the U2-BR1-BA1-980 offers:
- Bedroom – A well-sized 141 sq. ft. private retreat with ceiling fan for comfort.
- Bathroom – Full-size, 40 sq. ft. bathrooms with modern shower/tub combo, quartz vanity, and integrated shelving.
- Shared Space – An open-concept living + kitchen area designed for both daily living and entertaining.
At Pacific Sands, we design ADUs that balance comfort, efficiency, and rental potential. The U2-BR1-BA1-980 Model is a 980 sq. ft. two-unit detached ADU, ideal for property owners who want to maximize ROI while still offering spacious, functional living for occupants.
With two independent 1-bedroom, 1-bathroom units, this layout is perfect for multi-generational families or dual rental opportunities.
Key Features
Two Spacious Units
- Each unit offers a private 1 bed / 1 bath layout, making them perfect for independent living or rental income.
- At 980 sq. ft. total, both units feel roomy compared to most compact ADU layouts.
Seamless Shared Spaces
- Oversized 239 sq. ft. combined kitchen + living rooms in each unit.
- Open concept design ensures a natural flow, perfect for entertaining.
Upgraded Amenities
- Energy-efficient mini-split A/C system in each living room.
- Ceiling fans in both living rooms and bedrooms for year-round comfort.
- Contemporary finishes throughout.
Benefits for Homeowners
- Maximized ROI – Two rentable units mean greater income potential.
- Spacious Yet Efficient – Each 1 bed / 1 bath layout feels larger than its square footage thanks to smart design.
- Market Appeal – Perfect for attracting long-term tenants or offering multi-generational housing.
- Flexible Use – One unit can serve as a guest house or family suite while renting out the other.
- Affordable Luxury – Premium finishes and thoughtful layouts without exceeding 1,000 sq. ft.
Why Choose the U2-BR1-BA1-980 Model?
The U2-BR1-BA1-980 Two-Unit ADU is one of the most practical and profitable ways to expand property value. By offering two full-sized 1-bedroom apartments in under 1,000 sq. ft., it creates a spacious yet compact solution that’s ideal for urban and suburban lots alike.
At Pacific Sands, we also provide permitting support and customization options, ensuring your ADU fits your property and long-term vision.
Industry Experts
20+ years of expertise and creative solutions in permitting Construction Plans. We are trusted partners in Southern California.
Permits Approved
We permit more projects in SoCal than almost anyone. Our services are backed by a promise to deliver excellence.
Budget Wise
We understand the importance of staying in your budget, and we design with building costs as a primary factor.







