1 Bed, 1 Bath Two-Unit Detached ADU – 920 sq. ft.
U2-BR1-BA1-940b

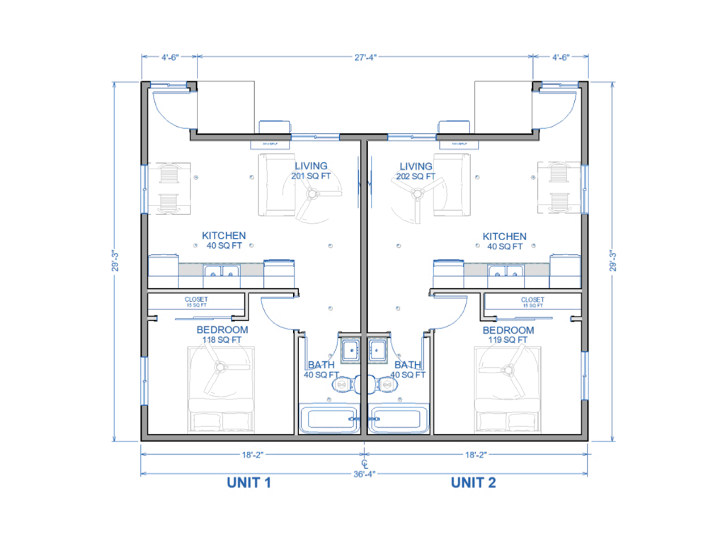
Plan Details
- Size: 940 sq. ft. (two units)
- Model: U2-BR1-BA1-940b
- Layout: Each unit includes 1 bedroom, 1 bathroom, open-concept kitchen + living area
- Configuration: Dual side-by-side units
Intelligent 1 Bedroom, 1 Bathroom Layouts
Each unit in the U2-BR1-BA1-940b includes:
- Bedroom – Private, well-sized bedroom designed for comfort.
- Bathroom – Full bathroom with a modern shower/tub combo, integrated shelving, and quartz vanity.
- Shared Spaces – Open-concept kitchen and living area for natural flow and modern convenience.
- Despite the compact footprint, each unit feels functional and livable, proving that smart design outweighs square footage.
At Pacific Sands, we believe in designing ADUs that deliver maximum functionality and income potential. The U2-BR1-BA1-940b Model is a two-unit detached ADU totaling 940 sq. ft., with two adjacent 1-bedroom, 1-bathroom units.
Compact, efficient, and profitable — this plan is a smart choice for homeowners and investors alike who want to double their rental income while keeping their build cost-efficient.
Key Features
Two Independent Units
- Side-by-side layout creates privacy for both tenants while keeping the overall footprint compact.
- Each unit has its own entrance, kitchen, bathroom, and living space.
Efficient Design
- Open-concept living + kitchen layouts maximize usability.
- Perfect balance between private bedrooms and social living areas.
Modern Finishes
- Quartz countertops, upgraded cabinetry, and optional kitchen islands or peninsulas.
- Mini-split A/C systems and ceiling fans available as comfort upgrades.
Space-Smart Bathrooms
- Each bathroom at approx. 40 sq. ft. offers everything tenants need without wasted space.
Benefits for Homeowners
- High ROI Potential – Two compact rental-ready units under 1,000 sq. ft. maximize your income while minimizing build costs.
- Investor-Friendly – Perfect for landlords looking to add dual revenue streams on a single lot.
- Flexible Use – Works equally well for multi-generational living, guest suites, or mixed rental + personal use.
- Tenant Appeal – Small, efficient 1-bedroom units are highly attractive to singles, couples, and young professionals.
- Smart Build Choice – Efficient square footage makes this design more affordable while still offering desirable amenities.
Why Choose the U2-BR1-BA1-940b Model?
The U2-BR1-BA1-940b Two-Unit ADU is one of the most cost-effective dual-unit solutions available in the Pacific Sands catalog. At just 940 sq. ft., it provides two full rental-ready residences, allowing homeowners to double rental income without doubling build size or costs.
At Pacific Sands, we also provide permitting guidance and customization options so the U2-BR1-BA1-940b can be tailored to fit your property and investment strategy.
Industry Experts
20+ years of expertise and creative solutions in permitting Construction Plans. We are trusted partners in Southern California.
Permits Approved
We permit more projects in SoCal than almost anyone. Our services are backed by a promise to deliver excellence.
Budget Wise
We understand the importance of staying in your budget, and we design with building costs as a primary factor.







