1 Bed, 1 Bath Two-Unit Detached ADU – 1100 sq. ft.
U2-BR1-BA1-1100

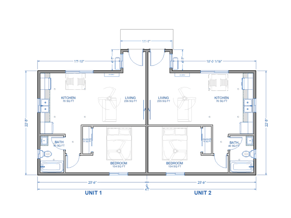
Plan Details
- Size: 1,100 sq. ft. (two units)
- Model: U2-BR1-BA1-1100
- Layout: Each unit includes 1 bedroom, 1 bathroom, and open-concept kitchen + living area
- Configuration: Dual detached units
Large 1 Bedroom, 1 Bathroom Layouts
Each of the two units in the U2-BR1-BA1-1100 provides:
- Bedroom – Spacious 134 sq. ft. private retreat.
- Bathroom – Full 40 sq. ft. bathroom with quartz vanity, shower/tub combo, and integrated shelving.
- Shared Space – Open-concept kitchen + living room totaling 306 sq. ft. for each unit.
This thoughtful layout ensures that each unit feels roomy, modern, and livable.
At Pacific Sands, we know that some property owners want larger, more spacious ADU units that still fit within a compact footprint. The U2-BR1-BA1-1100 Model is a 1,100 sq. ft. detached ADU split into two generously sized 1-bedroom, 1-bathroom units, making it an excellent option for maximizing both comfort and rental potential.
Key Features
Two Oversized Units
- Each unit is larger than most standard 1-bedroom ADUs.
- Bedrooms, bathrooms, and shared spaces are all designed for maximum usability.
Straight-Line Kitchen Layouts
- Functional kitchens with fridge, sink, and stove all on one wall.
- Optional upgrades include peninsulas or additional cabinetry for storage and seating.
Upgraded Comfort Amenities
- Mini-split A/C systems in each living room for efficient cooling.
- Ceiling fans in both bedrooms and living rooms.
- Modern finishes for a sleek, contemporary look.
Benefits for Homeowners
- Spacious Living – Larger than typical two-unit ADUs, making it easier to attract long-term tenants.
- Flexible Use – Works equally well as dual rentals, extended family housing, or a mix of both.
- Maximized ROI – Bigger units often command higher rents, boosting investment potential.
- Lot Efficiency – Still compact enough to preserve outdoor living space.
- Tenant Appeal – Oversized bedrooms and open-concept layouts feel more like full-sized apartments.
Why Choose the U2-BR1-BA1-1100 Model?
The U2-BR1-BA1-1100 Two-Unit ADU offers the best of both worlds: ample interior space for tenants while still being compact enough to fit a variety of property sizes. It’s a top choice for investors or homeowners who want to maximize both livability and return on investment.
At Pacific Sands, we can also assist with permitting, customization, and finish selections to ensure your M2-1104 perfectly suits your property.
Industry Experts
20+ years of expertise and creative solutions in permitting Construction Plans. We are trusted partners in Southern California.
Permits Approved
We permit more projects in SoCal than almost anyone. Our services are backed by a promise to deliver excellence.
Budget Wise
We understand the importance of staying in your budget, and we design with building costs as a primary factor.







