El Cajon, San Diego County, California
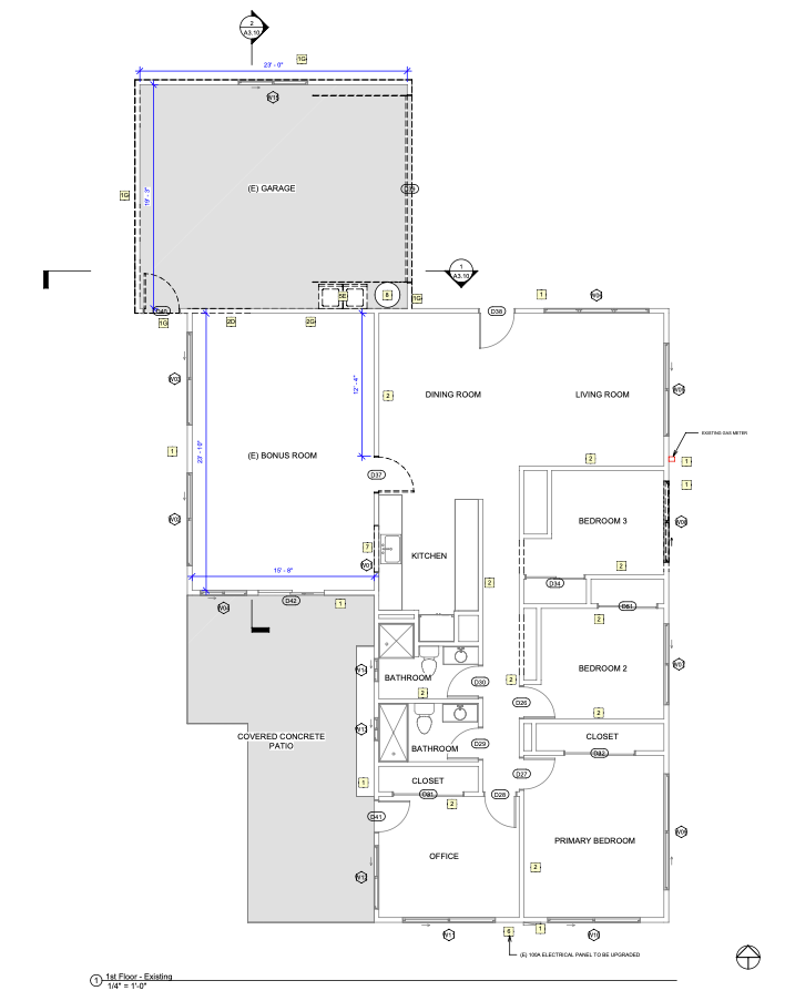
Our client wanted to convert an attached garage and a portion of the existing house into a one-bedroom Accessory Dwelling Unit (ADU) with a laundry room, separate entry, and dedicated backyard space.
New We designed a fully-functional one-bedroom ADU utilizing the existing garage space of the existing single-family home for the bedroom, office, bathroom, closet, and entryway. We repurposed a bonus room to create an open-concept-style kitchen, dining room, and living room. All permits were obtained from the necessary city and county authorities and final construction-ready plans were provided to the client.


Ready to get started?
CALL OR TEXT
Creating home designs, building plans, and construction documents for residential and commercial building projects in all of Southern California.
CONTACT US
Call Us: 310-362-6513
E-mail: plans@pacsands.com
OUR OFFICES
LA: 10801 National Blvd
Los Angeles, CA 90064
SAN DIEGO: 136 B Ave.
Coronado, CA 92118
RESOURCES
OTHER SERVICES
SB9 Lot Splitting
SB721 and SB 326 Elevated Inspections
Structural Assmnts
Structural Observe
Special Inspections
Coastal Development Projects
TECHNICAL SERVICES
PERMITTING SERVICES
Building Permits
Combo Permits
Remodel Permits
ADU / JADU Permits
Site Development Permit
Right-of-Way Permits
Conditional Use Permits
Business License Site Plans
Change of Occupancy
Health Dept. Food
Tenant Improvements

Projects Team: (619) 815-4126
Permitting Team: (323) 970-2983
Sales Team: (323) 678-49113
Pac Sands Corp - 10801 National Blvd Ste 609 Los Angeles CA 90064
Pac Sands Corp | Pacific Sands Group Inc | Pac Stack. All Rights Reserved.
We Do Not Collect or Sell Your Personal Information
add a title
Add a link
Add a link
Add a link
add a title
Add a link
Add a link
Add a link
add a title
Add a link
add a title
Add a link
Add a link
Add a link
add a title
Add a link
Add a link
Add a link
add a title
Add a link