
Garage ADU Conversion
El Cajon, San Diego County, California
The Ask
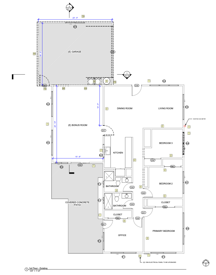
Our client wanted to convert an attached garage and a portion of the existing house into a one-bedroom Accessory Dwelling Unit (ADU) with a laundry room, separate entry, and dedicated backyard space.
Capabilities
- 3D Property Scan
- Initial Design
- Architectural Plans
- Structural Plans
- Calculations
- Title 24 Compliance
- Permitting Approvals
Results
We designed a fully-functional one-bedroom ADU utilizing the existing garage space of the existing single-family home for the bedroom, office, bathroom, closet, and entryway. We repurposed a bonus room to create an open-concept-style kitchen, dining room, and living room. All permits were obtained from the necessary city and county authorities and final construction-ready plans were provided to the client.



